Якушоўка. Праект аднаўлення сядзібы Каліноўскіх
Праект аднаўлення сядзібы ў Якушоўцы распрацаваны пад кіраўніцтвам гарадзенскага архітэктара У. Барсукова ў канцы 1980-х гадоў на аснове раскопак, праведзеных археолагам М. Ткачовым, Да сярэдзіны 1990-х супрацоўнікам Гарадзенскага гісторыка-археалагічнага музея Р. Акінчыцам былі праведзены дадатковыя раскопкі, і адмыслоўцы паспелі адбудаваць падмурак сядзібнага дома, пасля чаго працы давялося згарнуць. Частка матэрыялаў праекта захавалася ў асабістым архіве Р. Акінчыца. Прапануем для азнаямлення асобныя аркушы, нанова перамаляваныя А. Шулаевым з фотакопій, перададзеных гісторыкам А. Вашкевічам.
![]() |
| |
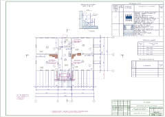
| Аркуш 1 Агульныя звесткі | Аркуш 2 Сітуацыйны план. Генеральны план | |
![]() | ||
| Аркуш 3 План на адзнацы 0.000 | ||
Матэрыял даслаў:
Андрэй Шулаеў


