
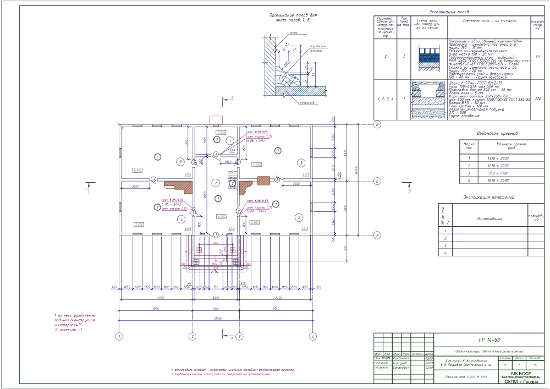
Якушоўка. Праект аднаўлення сядзібы Каліноўскіх
Аркуш 3. План на адзнацы 0.000
ГР 14-88
Отдел культуры Свислочского райисполкома
Дом-музей К. Калиновского в д. Якушовка Свислочского р-на
МК БССР
"Белспецпроектреставрац."
ОКПМ г. Гродно
Узнаўленне матэрыялу:
Андрэй Шулаеў